Skip to content

Saddlers House, Rooms 5 & 8, 4-6 South Parade, Bawtry, Doncaster, South Yorkshire

POA
CRAVEN WILDSMITH (COMMERCIAL) LIMITED, Doncaster
SIZE AVAILABLE

116-199 sq ft

11-18 sq m

SECTOR

Office to lease

Lease details

Lease available date:
Now

Key features

  • Excellent location
  • Beautiful market town
  • Well presented
  • Office 5 - 12.51 m2 (135 ft2) approx. £425 per month
  • Office 8 - 18.45 m2 (199 ft2) approx. £495 per month
  • Rent includes utilities
  • Wifi available
  • Limited parking available*

Description

This attractive Grade II listed building is sub divided to form a number of office suites. The offices are very well presented. There are shared kitchen and WC facilities on the ground and first floor. Limited parking is available on site, street and public parking available nearby.

NOTE Craven Wildsmith have not measured the rooms

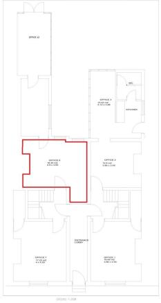
OFFICE 5- 12.51 m2 (135 ft2) located on the first floor.
OFFICE 8- 18.45 m2 (199 ft2) located on the ground floor.

Brochures

Saddlers House, Rooms 5 & 8, 4-6 South Parade, Bawtry, Doncaster, South Yorkshire

NEAREST STATIONS

Distances are straight line measurements from the centre of the postcode
  • Doncaster Station7.8 miles

About CRAVEN WILDSMITH (COMMERCIAL) LIMITED, Doncaster

33 Northgate Tickhill Doncaster DN11 9HZ

Craven Wildsmith was established in 2009 by Paul Wildsmith and Neal Craven MSc FRICS who have over 40 years’ experience. Paul is a residential property management specialist deals with lettings and management. Neal is a Chartered Surveyor with over 35 years commercial property experience in Doncaster and further afield, dealing with the letting and sale of commercial property, property management and professional work. Craven Wildsmith can also arrange a free consultation with a finance professional for business or personal needs.

We specialise in:

Residential lettings

Commercial sales and lettings

Management of residential and commercial property

Surveys and valuations for most purposes

General property advice

Notes

These notes are private, only you can see them.

Disclaimer - Property reference 3083LH. The information displayed about this property comprises a property advertisement. Rightmove.co.uk makes no warranty as to the accuracy or completeness of the advertisement or any linked or associated information, and Rightmove has no control over the content. This property advertisement does not constitute property particulars. The information is provided and maintained by CRAVEN WILDSMITH (COMMERCIAL) LIMITED, Doncaster. Please contact the selling agent or developer directly to obtain any information which may be available under the terms of The Energy Performance of Buildings (Certificates and Inspections) (England and Wales) Regulations 2007 or the Home Report if in relation to a residential property in Scotland.

Map data ©OpenStreetMap contributors.